E. oferta@opprojekt.com.pl

T. 798 020 032

PROJEKT ZŁOTORIA 2

POWIERZCHNIA UŻYTKOWA:  173,12 m2

 

  • szerokość elewacji: 14,44 m 
  • długość budynku: 9,74  m
  • liczba kondygnacji naziemnych: 2
  • liczba kondygnacji podziemnych 0
  • powierzchnia zabudowy: 124,81 m²
  • powierzchnia użytkowa parter: 93,18 m² 
  • powierzchnia użytkowa poddasze: 79,94 m² 
  • powierzchnia użytkowa łącznie: 173,12 m² 
  • kubatura  987,13 m3
  • wysokość budynku:  8,88 m 
  • dach dwuspadowy o nachyleniu 42 stopni

 

CENA PROJEKTU: 5500 zł 

 

dostępność 14 dni 

Najniższa cena z ostatnich 30 dni - 5500 zł 

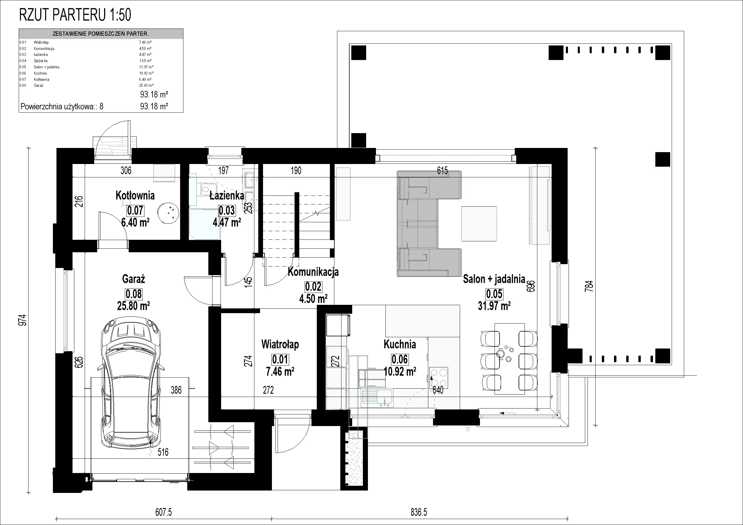
RZUT PARTERU

 

0.01 WIATROŁAP 7,46 m2

0.02 KOMUNIKACJA 4,50 m2

0.03 ŁAZIENKA 4,47 m2

0.04 SPIŻARKA 1,65 m2

0.05 SALON + JADALNIA 31,97 m2

0.06 KUCHNIA 10,92 m2

0.07 KOTŁOWNIA 6,40 m2

0.08 GARAŻ 25,80 m2

 

RZUTY I ELEWACJE

RZUT PODDASZA

 

1.01 KOMUNIKACJA 9,34 m2

1.02 POKÓJ 12,55 m2

1.03 GARDEROBA 4,69 m2

1.04 GARDEROBA 4,67 m2

1.05 POKÓJ 13,59 m2

1.06 POKÓJ 13,31 m2

1.07 GARDEROBA 5,30 m2

1.08 PRALNIA 4,55 m2

1.09 ŁAZIENKA 11,96 m2

DANE TECHNICZNE
 

TECHNOLOGIA BUDOWY:

FUNDAMENTY : tradycyjne - ławy i stopy fundamentowe
ŚCIANY ZEWNĘTRZNE: ceramika poryzowana (porotherm) + styropian 20 cm
ELEWACJA: tynk, deska elewacyjna
STROP: drewniany
KONSTRUKCJA DACHU: prefabrykowana kratownica drewniana, nad częścią salonową dach jętkowy, pokrycie dachówką ceramiczną lub cementową
OGRZEWANIE: Powietrzna pompa ciepła o mocy 6-7 kW typu powietrze- woda z ogrzewaniem podłogowym
WENTYLACJA: mechaniczna
 

DANE TECHNICZNE

 

TECHNOLOGIA BUDOWY:FUNDAMENTY : tradycyjne lub płyta fundamentowa
ŚCIANY ZEWNĘTRZNE: gazobeton + styropian 20 cm
ELEWACJA: tynk biały, tynk czarny, cegła, deska elewacyjna
STROP: gęsto żebrowy- Teriva
KONSTRUKCJA DACHU: prefabrykowana kratownica drewniana, pokrycie dachówką lub blachą na rąbek
OGRZEWANIE: Powietrzna pompa ciepła o mocy 6-7 kW/ na każdy z lokali typu powietrze- woda z ogrzewaniem podłogowym
WENTYLACJA: mechaniczna

KOSZTORYS

Lorem Ipsum is simply dummy text of the printing and typesetting industry. Lorem Ipsum has been the industry's standard dummy text ever since the 1500s, when an unknown printer took a galley of type and scrambled it to make a type specimen book. It has survived not only five centuries, but also the leap into electronic typesetting, remaining essentially unchanged. It was popularised in the 1960s with the release of Letraset sheets containing Lorem Ipsum passages, and more recently with desktop publishing software like Aldus PageMaker including versions of Lorem Ipsum.

  biuro@opprojekt.com.pl

MASZ PYTANIE DOTYCZĄCE PROJEKTU? 

 

Projekt powstał w naszej pracowni projektowej. W naszej firmie masz wyjątkową szansę bezpośredniej rozmowy z autorem projektu oraz architektem, który przygotowuje dokumentację. To właśnie oni posiadają najbardziej szczegółową wiedzę na temat projektu i są ekspertami w każdym jego aspekcie. 

CENTRUM INFORMACJI:

Projekt strony internetowej wykonany przez JL, polityka prywatności

NIP: 8792751392
REGON: 526499564

Biuro Projektowe OPPROJEKT Tworzymy projekty, które łączą Twoją wizję z naszym doświadczeniem technicznym. Specjalizujemy się w projektach indywidualnych 3D, adaptacjach oraz konstrukcjach stalowych i żelbetowych.

 

Co nas wyróżnia?

Kompleksowość: Załatwiamy formalności i pozwolenia za Ciebie.

Nowoczesność: Projektujemy w 3D, byś mógł „wejść” do domu przed budową.

Mobilność: Pracujemy w Toruniu i okolicach, ale projektujemy zdalnie dla klientów z całej Polski.

Chcesz skonsultować swój pomysł?

Zadzwoń do nas pod numer 798 020 032 lub napisz na oferta@opprojekt.com.pl. Sprawdźmy razem, co możemy wspólnie zbudować!

 ADRES:

 

ul. Owocowa 43a

87-123 Brzozówka