E. oferta@opprojekt.com.pl

T. 798 020 032

POWIERZCHNIA UŻYTKOWA:  94,16 m2

  • szerokość elewacji: 14,99 m 

  •  długość budynku: 8,04  m

  •  liczba kondygnacji naziemnych: 1

  •  liczba kondygnacji podziemnych: 0

  •  powierzchnia zabudowy: 120,52 m²

  •  powierzchnia użytkowa: 94,16 m² 

  •  kubatura: 617,06 m3

  •  wysokość budynku: 6,97 m 

  •  dach dwuspadowy o nachyleniu 40 stopnie

 

CENA PROJEKTU: 4500 zł 

 

dostępność 14 dni 

Najniższa cena z ostatnich 30 dni - 4500 zł 

PROJEKT PROSTY 1D

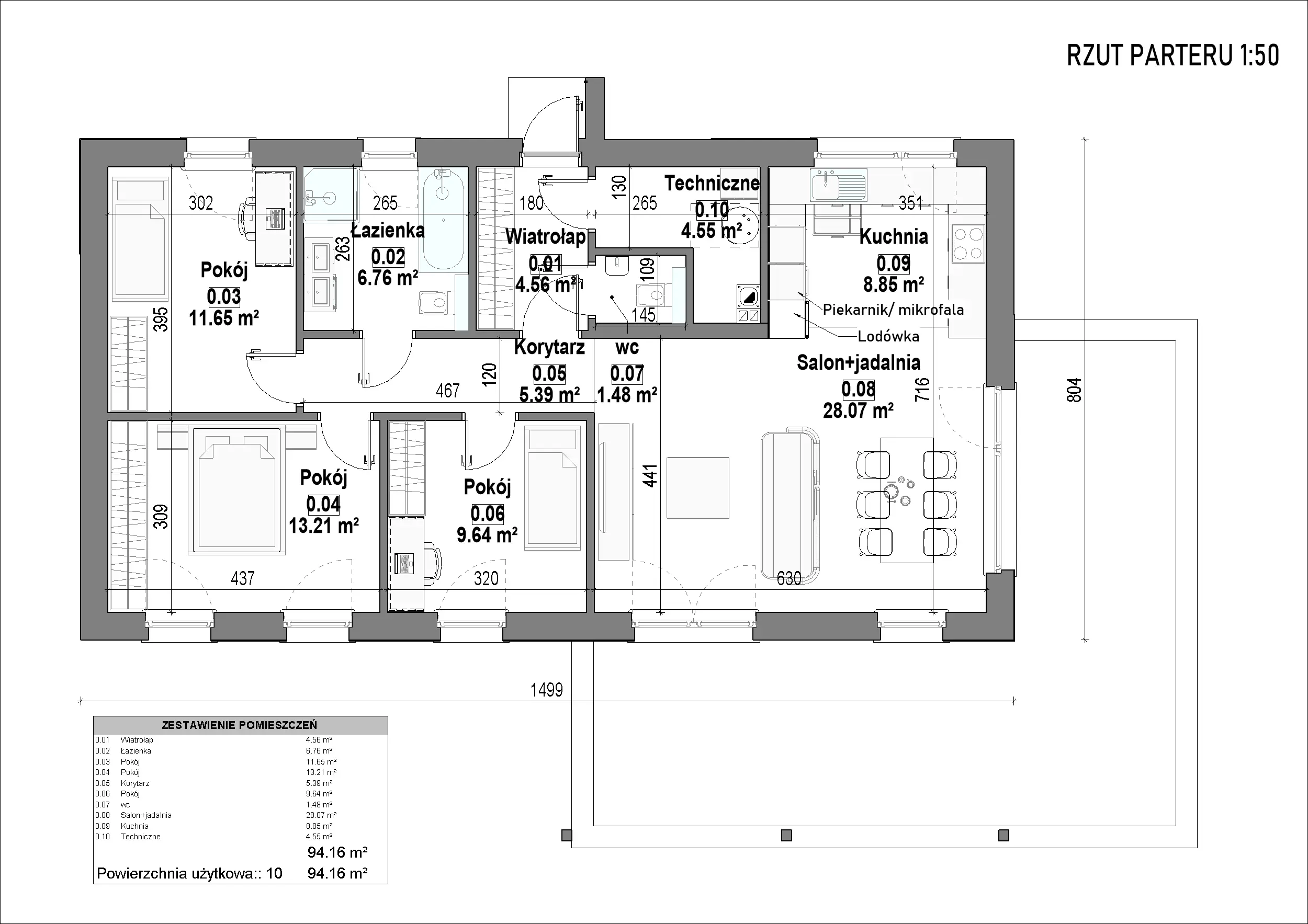
RZUT PARTER:

 

0.01 WIATROŁAP 4,56 m2
0.02 ŁAZIENKA 6,76 m2
0.03 POKÓJ 11,65 m2
0.04 POKÓJ 13,21 m2
0.05 KORYTARZ 5,39 m2
0.06 POKÓJ 9,64 m2
0.07 WC 1,48 m2
0.08 SALON+JADALNIA 28,07 m2
0.09 KUCHNIA 8,85 m2
0.10 TECHNICZNE 4,55 m2

RZUTY I ELEWACJE

RZUT PIĘTRO

 

1    WIATROŁAP    4,6 m2
2    KOMUNIKACJA    5,6 m2
3    ŁAZIENKA    6,0 m2
4    POKÓJ    12,8 m2
5    POKÓJ    12,8 m2
6    POKÓJ GOŚCINNY - GABINET    10,9 m2
7    ŁAZIENKA    5,9 m2
8    SYPIALNIA    22,9 m2
9    POKÓJ DZIENNY    28,4 m2
10    JADALNIA    18,0 m2
11    KUCHNIA    10,9 m2
12    SPIŻARNIA    2,9 m2
13    POM. GOSPODARCZE - KOTŁOWNIA    4,4 m2
14    KORYTARZ    3,4 m2
15    GARAŻ    38,6 m2

DANE TECHNICZNE
 

TECHNOLOGIA BUDOWY:
FUNDAMENTY : tradycyjne - ławy i stopy fundamentowe
ŚCIANY ZEWNĘTRZNE: gazobeton + styropian 20 cm
ELEWACJA: tynk, deska elewacyjna, cegła
STROP: drewniany
KONSTRUKCJA DACHU: prefabrykowana kratownica drewniana, pokrycie dachówką ceramiczną lub cementową
OGRZEWANIE: Powietrzna pompa ciepła o mocy 6-7 kW typu powietrze- woda z ogrzewaniem podłogowym
WENTYLACJA: grawitacyjna

DANE TECHNICZNE

 

TECHNOLOGIA BUDOWY:
FUNDAMENTY: tradycyjne - ławy i stopy fundamentowe
ŚCIANY ZEWNĘTRZNE: gazobeton + styropian 20 cm
ELEWACJA: tynk, deska elewacyjna, cegła
STROP: drewniany
KONSTRUKCJA DACHU: prefabrykowana kratownica drewniana, pokrycie dachówką ceramiczną lub cementową
OGRZEWANIE: Powietrzna pompa ciepła o mocy 6-7 kW typu powietrze- woda z ogrzewaniem podłogowym
WENTYLACJA: grawitacyjna

KOSZTORYS

Lorem Ipsum is simply dummy text of the printing and typesetting industry. Lorem Ipsum has been the industry's standard dummy text ever since the 1500s, when an unknown printer took a galley of type and scrambled it to make a type specimen book. It has survived not only five centuries, but also the leap into electronic typesetting, remaining essentially unchanged. It was popularised in the 1960s with the release of Letraset sheets containing Lorem Ipsum passages, and more recently with desktop publishing software like Aldus PageMaker including versions of Lorem Ipsum.

  biuro@opprojekt.com.pl

MASZ PYTANIE DOTYCZĄCE PROJEKTU? 

 

Projekt powstał w naszej pracowni projektowej. W naszej firmie masz wyjątkową szansę bezpośredniej rozmowy z autorem projektu oraz architektem, który przygotowuje dokumentację. To właśnie oni posiadają najbardziej szczegółową wiedzę na temat projektu i są ekspertami w każdym jego aspekcie. 

CENTRUM INFORMACJI:

Projekt strony internetowej wykonany przez JL, polityka prywatności

NIP: 8792751392
REGON: 526499564

Biuro Projektowe OPPROJEKT Tworzymy projekty, które łączą Twoją wizję z naszym doświadczeniem technicznym. Specjalizujemy się w projektach indywidualnych 3D, adaptacjach oraz konstrukcjach stalowych i żelbetowych.

 

Co nas wyróżnia?

Kompleksowość: Załatwiamy formalności i pozwolenia za Ciebie.

Nowoczesność: Projektujemy w 3D, byś mógł „wejść” do domu przed budową.

Mobilność: Pracujemy w Toruniu i okolicach, ale projektujemy zdalnie dla klientów z całej Polski.

Chcesz skonsultować swój pomysł?

Zadzwoń do nas pod numer 798 020 032 lub napisz na oferta@opprojekt.com.pl. Sprawdźmy razem, co możemy wspólnie zbudować!

 ADRES:

 

ul. Owocowa 43a

87-123 Brzozówka