E. oferta@opprojekt.com.pl

T. 798 020 032

Komfort, funkcjonalność i nowoczesna forma – prezentujemy nową koncepcję domu

Przedstawiamy koncepcję nowoczesnego domu jednorodzinnego o powierzchni użytkowej 285,55 m², zaprojektowanego z myślą o wygodzie, funkcjonalności oraz estetyce. Budynek składa się z parteru oraz poddasza użytkowego, a jego układ przestrzenny został starannie przemyślany, aby zapewnić komfort codziennego użytkowania całej rodzinie.

 

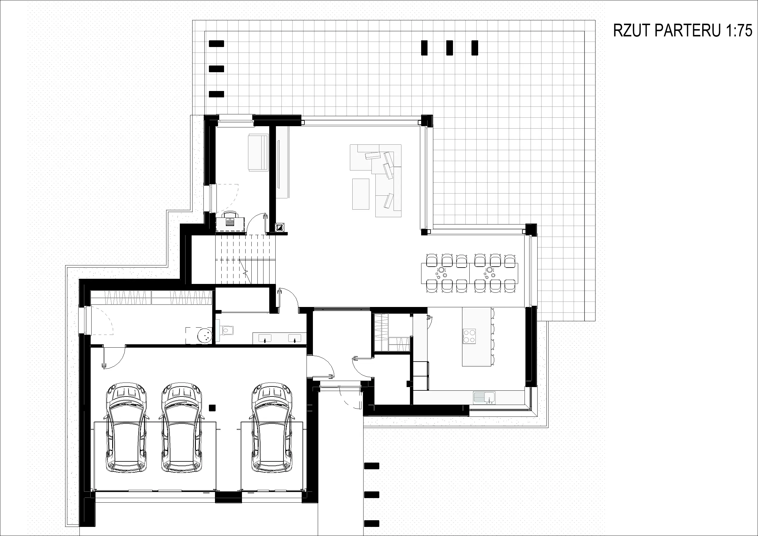
Na parterze zaplanowano przestronną strefę dzienną obejmującą salon z jadalnią, z którego prowadzi bezpośrednie wyjście na taras, sprzyjające wypoczynkowi i spotkaniom na świeżym powietrzu. Uzupełnieniem tej części jest kuchnia ze spiżarką, biuro, łazienka, pomieszczenie techniczne oraz garderoba zlokalizowana przy wiatrołapie. W bryle budynku znajduje się również duży garaż zapewniający wygodne parkowanie oraz dodatkową przestrzeń do przechowywania.

 

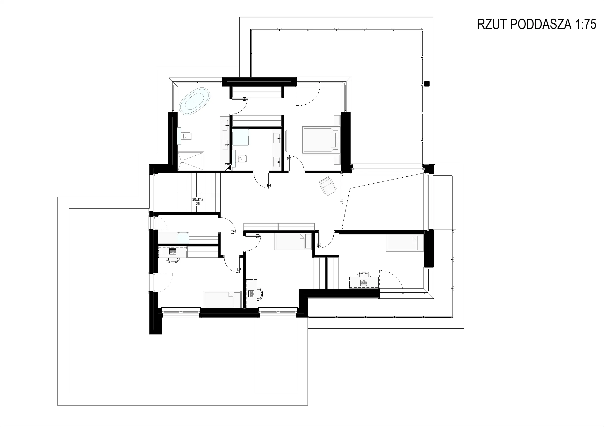
Poddasze użytkowe stanowi prywatną strefę domowników. Zaprojektowano tu cztery pokoje, dwie łazienki oraz osobną pralnię, co znacząco podnosi funkcjonalność domu i komfort codziennego życia.

 

Całość dopełnia nowoczesna, elegancka bryła. Projekt łączy minimalistyczną formę z praktycznymi rozwiązaniami, tworząc komfortowy i ponadczasowy dom, odpowiadający na potrzeby współczesnego stylu życia.

 

 

 

12 grudnia 2025

Projekt strony internetowej wykonany przez JL, polityka prywatności

NIP: 8792751392
REGON: 526499564

Biuro Projektowe OPPROJEKT Tworzymy projekty, które łączą Twoją wizję z naszym doświadczeniem technicznym. Specjalizujemy się w projektach indywidualnych 3D, adaptacjach oraz konstrukcjach stalowych i żelbetowych.

 

Co nas wyróżnia?

Kompleksowość: Załatwiamy formalności i pozwolenia za Ciebie.

Nowoczesność: Projektujemy w 3D, byś mógł „wejść” do domu przed budową.

Mobilność: Pracujemy w Toruniu i okolicach, ale projektujemy zdalnie dla klientów z całej Polski.

Chcesz skonsultować swój pomysł?

Zadzwoń do nas pod numer 798 020 032 lub napisz na oferta@opprojekt.com.pl. Sprawdźmy razem, co możemy wspólnie zbudować!

 ADRES:

 

ul. Owocowa 43a

87-123 Brzozówka